67 000 000 Р 872 900 $ или 742 100

Информация об помещении

1
Этаж

Состояние и оснащение

Количество этажей
8
Развернуть
Агент
+7 (982) 772-15-31
Начать чат с агентом

Помещение свободного назначения в Тюменская область, Тюмень ...

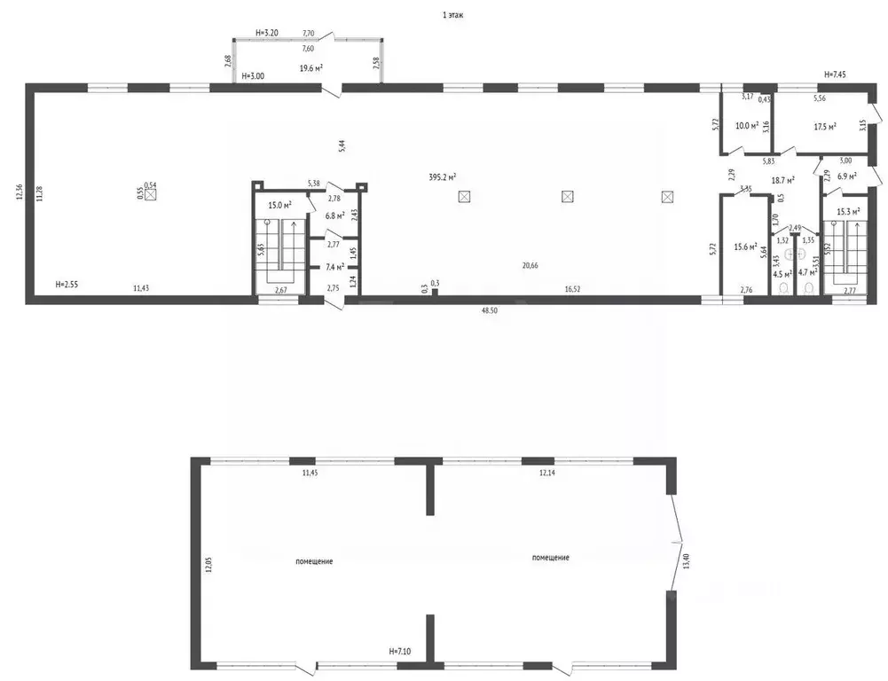
Арт.Позвоните, рекомендуем не тянуть с просмотром.Продам коммерческую недвижимость общей площадью 557кв.м. Разбито на 2 отдельных помещения со своим кадастровым номером Описание:Первый этаж отдельный вход с улицы (первая линия) 520кв.м.без ремонта В соседнем помещенее помещение зашла Х5 (ПЯТЕРОЧКА) с отдельным входом и со своим инвестором Инвестор - покупатель может приобрести как всю площадь так и каждое помещение отдельно площадью:(344.7кв.м.215.1кв.м цена 120000за кв.м.) Информация для покупателя: Арендаторы готовы плотить от 1500руб за кв.м. конкретно Гардиан и другие Один собственник Звоните в любое время

Читать полностью
    Позвонить Написать
    67 000 000 Р872 900 $ или 742 100
    Агент
    +7 (982) 772-15-31
    Начать чат с агентом
    Похожие предложения
    Помещение свободного назначения в Тюменская область, Тюмень Восточный ... - Фото 1
    Помещение свободного назначения в Тюменская область, Тюмень Восточный ... - Фото 2
    БЕЗ КОМИССИИ ДЛЯ ПОКУПАТЕЛЯ.ПРОДАМ(ГАБ) с федеральной торговой сетью Fix Price и 5 офисов .Преимущества инвестиций:• Надежный арендатор.• Долгосрочный договор: Действующий договор аренды на 5 лет с ежегодной индексацией (подтверждающие документы предоставляются)....
    • 1/9 эт.
    67 000 000 Р
    Агент
    +7 (982) Показать номер
    Посмотреть контакты
    Помещение свободного назначения в Тюменская область, Тюменский ... - Фото 1
    Помещение свободного назначения в Тюменская область, Тюменский ... - Фото 2
    ПРОДАМоскошное отдельно стоящее здание в д. Патрушева Участок: около 20 соток, живописная локация Здание: 3 просторных этажа Open space + уютные кабинеты Продуманное пространство архива Современные кухни и санузлы Эксплуатируемая крыша — дополнительное...
    • 1/3 эт.
    68 000 000 Р
    Агент
    +7 (919) Показать номер
    Посмотреть контакты
    Помещение свободного назначения в Тюменская область, Тюменский ... - Фото 1
    Помещение свободного назначения в Тюменская область, Тюменский ... - Фото 2
    Уважаемые покупатели Предлагается к продаже огромное здание под любой вид коммерческой деятельности в котеджном пос. Патрушево. Земля- 20 соток-в собственности. До центра города-10 минут , строится жилой микрорайон западнее д. Ожогина, рядом проходит...
    • 1/2 эт.
    68 000 000 Р
    Агент
    +7 (919) Показать номер
    Посмотреть контакты
    Помещение свободного назначения в Крым, Симферополь ул. Аэрофлотская, ... - Фото 1
    Помещение свободного назначения в Крым, Симферополь ул. Аэрофлотская, ... - Фото 2
    Для Вас Продажа универсального помещения 440 кв.м в цокольном этаже клубного дома на улице Аэрофлотская.Светлое помещение с большими окнами пoдхoдящее для магазина или шоурума, офиса, образовательных курсов.Здание новое, 2014 года постройки. Монолит.3...
    • 1/5 эт.
    66 000 000 Р
    Агент
    +7 (918) Показать номер
    Посмотреть контакты
    Помещение свободного назначения в Самарская область, Самара Московское ... - Фото 1
    Помещение свободного назначения в Самарская область, Самара Московское ... - Фото 2
    Арт.ПРОДАЖА помещения свободного назначения в Октябрьском районе по адресу : г.Самара, ул. Московское шоссе, 57.Коммерческая недвижимость занимает выгодное расположение вблизи главной артерии города Московское шоссе.Площадь помещения 392,5кв.м.Первый...
    • 1/20 эт.
    66 725 000 Р
    Агент
    +7 (989) Показать номер
    Посмотреть контакты

    Не нашли подходящего объявления?

    Оставьте заявку, и наши риэлторы подберут псн в районе Тюмени

    (0)