61 000 000 Р 794 800 $ или 675 700

Информация об помещении

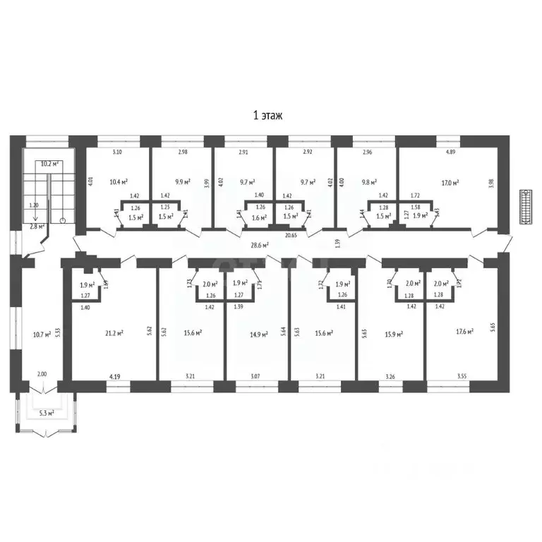
3
Этаж

Состояние и оснащение

Количество этажей
3
Развернуть
Агент
+7 (919) 943-11-31
Начать чат с агентом

Помещение свободного назначения в Тюменская область, Тюмень Ямская ...

Коммерческое здание расположено на первой линии с высокой проходимостью в престижном районе Тюмени, что обеспечивает постоянный поток потенциальных клиентов. Удобное расположение вблизи Тюменского индустриального института и Дома обороны делает объект привлекательным для студентов, сотрудников и посетителей этих учреждений. В пешей доступности (5 минут) находится мост Влюбленных — популярное место среди горожан и туристов, что дополнительно увеличивает потенциал локации. Здание состоит из двух этажей и цокольного помещения, что позволяет гибко организовать пространство под различные виды бизнеса. Инфраструктура объекта включает собственную парковку для клиентов и сотрудников, что решает проблему с парковкой в центре города. Подведены все необходимые коммуникации: газ, центральное водоснабжение и канализация, что упрощает запуск бизнеса без дополнительных вложений в инженерные сети. Здание построено в 2022 году и находится в отличном состоянии, с черновой отделкой, что дает возможность адаптировать помещение под конкретные задачи нового владельца — будь то кафе, ресторан, медицинский центр, офис или розничный магазин. Высокий пешеходный трафик и удобная транспортная доступность делают это место идеальным для коммерческой деятельности. Отсутствие необходимости в капитальном ремонте и готовность к эксплуатации позволяют минимизировать сроки запуска бизнеса. Объект подойдет как для арендаторов, так и для инвесторов, рассматривающих долгосрочные вложения в недвижимость с высоким потенциалом доходности.ОБРАТИТЕ ВНИМАНИЕ ПОКУПКА КОММЕРЧЕСКОЙ НЕДВИЖИМОСТИ ЧЕРЕЗ КОМПАНИЮ ЭТАЖИ БЕЗ КОМИССИИ ДЛЯ ПОКУПАТЕЛЯ Код пользователя: 111615Номер в базе: 8985572

Читать полностью
    Позвонить Написать
    61 000 000 Р794 800 $ или 675 700
    Агент
    +7 (919) 943-11-31
    Начать чат с агентом
    Похожие предложения
    Помещение свободного назначения в Тюменская область, Тюмень ул. ... - Фото 1
    Помещение свободного назначения в Тюменская область, Тюмень ул. ... - Фото 2
    Продается арендный бизнес: отдельное здание площадью более 1000 кв.м с 5 этажами на первой линии улицы Мельникайте. Отличная видимость и высокий поток людей, закрытая парковка на 20 машин и бесплатные места для клиентов. Здание подходит для офисов, магазинов...
    • 1/5 эт.
    60 000 000 Р
    Агент
    +7 (982) Показать номер
    Посмотреть контакты
    Помещение свободного назначения в Тюменская область, Тюмень Старый ... - Фото 1
    Помещение свободного назначения в Тюменская область, Тюмень Старый ... - Фото 2
    В промзоне Антипино, по Старотобольскому тракту, продаeтcя 2-этажное здaние.Здание подготовлено под ремонт. Подойдет под офис компании, офисное здание, апартаменты, медицинский центр, производство.Здание кирпичное, отдельностоящее, плoщaдь около 1000...
    • 1/2 эт.
    61 000 000 Р
    Агент
    +7 (919) Показать номер
    Посмотреть контакты
    Помещение свободного назначения в Тюменская область, Тюмень ул. ... - Фото 1
    Помещение свободного назначения в Тюменская область, Тюмень ул. ... - Фото 2
    БЕЗ КОМИССИИ С Федеральным Арендатором. САМОКАТ. 1 линия Продам нежилое помещение на 1 этаже общей площадью - 272 м2. Расположено в ЖК КОРНЕЙ .На фасаде согласовано место под информационно-рекламную вывеску, высокие потолки - 3,3 м. Отдельные 2...
    • 1/5 эт.
    60 000 000 Р
    Агент
    +7 (912) Показать номер
    Посмотреть контакты
    Помещение свободного назначения в Тюменская область, Тюмень ул. ... - Фото 1
    Помещение свободного назначения в Тюменская область, Тюмень ул. ... - Фото 2
    Продается отель 303 кв.м (возможно с НДС),с арендатором по ставке 315 000 / в месяц с ежегодной индексацией 5 , долгосрочный договор аренды (с финансовыми гарантиями).Все коммунальный платежи арендатор оплачивает дополнительно При продаже с НДС стоимость...
    • 4/5 эт.
    60 600 000 Р
    Агент
    +7 (982) Показать номер
    Посмотреть контакты
    Помещение свободного назначения в Тюменская область, Тюмень ул. ... - Фото 1
    Помещение свободного назначения в Тюменская область, Тюмень ул. ... - Фото 2
    Продается отдельно стоящее здание S=1133 м2 г.Тюмень- Земельный участок 8,21 соток;- 4 сот из которых можно использовать под хранение- 4 надземных этажа, на каждом этаже по 13 апартаментов;- Год постройки 1968 г.;- в настоящее время сдается в аренду...
    • 4/4 эт.
    60 000 000 Р
    Агент
    +7 (919) Показать номер
    Посмотреть контакты

    Не нашли подходящего объявления?

    Оставьте заявку, и наши риэлторы подберут псн в районе Тюмени

    (0)