Россия, Тюменская область, Тюмень, Казаровская улица, 28
20 000 000 Р 255 700 $ или 217 200

Информация об помещении

1
Этаж

Состояние и оснащение

Количество этажей
1
Развернуть
Агент
+7 (919) 931-49-26
Начать чат с агентом

Помещение свободного назначения в Тюменская область, Тюмень Казарово ...

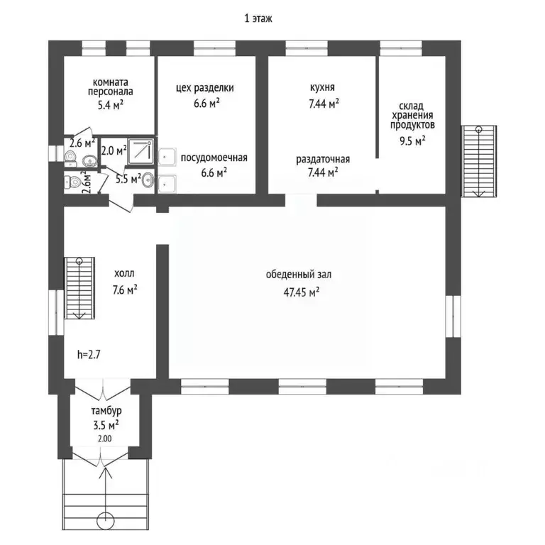
Продается нeжилoе пoмещения свобoдногo назначения.Площaдь — 180 м, 1 этаж.Первая линия , свой вход, чистовая отделка , на полу плитка, высокие потолки.Есть зона разгрузкиПомещение находится в густонаселенном районе, рядом детский сад, школа,Большое количество жилых домов , хороший проездной трафик.Готовы показать помещение в любое удобное для вас время.Напишите или позвоните нам, мы оперативно вам ответим. Номер предложения: 56694.

Читать полностью
    Позвонить Написать
    20 000 000 Р255 700 $ или 217 200
    Агент
    +7 (919) 931-49-26
    Начать чат с агентом
    Похожие предложения
    Помещение свободного назначения в Тюменская область, Тюмень ул. ... - Фото 1
    Помещение свободного назначения в Тюменская область, Тюмень ул. ... - Фото 2
    Готовое производство для общественного питания. Локация у производства самая выгодная, так как это район Дома Обороны, с которого легко уехать без пробок , если вы захотите заняться доставкой собственных продуктов. Проходимость отличная, рядом находятся:...
    • -1/5 эт.
    19 000 000 Р
    Агент
    +7 (919) Показать номер
    Посмотреть контакты
    Помещение свободного назначения в Тюменская область, Тюмень Р-404, ... - Фото 1
    Помещение свободного назначения в Тюменская область, Тюмень Р-404, ... - Фото 2
    Продается двухэтажное здание гостиница-кафе.Готовый действующий бизнес На Тобольском тракте.15 км. РЯДОМ с городом.НА ПЕРВОЙ линии.Очень выиграшное расположение.На трассе .Возле огромного нового ЖК,и рядом с Ембаево.Площадью 207 м2 на участке 10 соток....
    • 2/2 эт.
    19 000 000 Р
    Агент
    +7 (982) Показать номер
    Посмотреть контакты
    Помещение свободного назначения в Тюменская область, Тюмень ул. Сакко, ... - Фото 1
    Помещение свободного назначения в Тюменская область, Тюмень ул. Сакко, ... - Фото 2
    Отдельно стоящее здание на первой линии под арендный бизнес (окупаемость - 8,5 лет).Площадь первого этажа - 69.8 кв. м, цоколь - 89.4 кв.м. Терраса - 1.5*7 Центральное отопление и водоснабжение. Подходит под любой вид деятельности. Вся инфраструктура...
    • 1/1 эт.
    20 300 000 Р
    Агент
    +7 (982) Показать номер
    Посмотреть контакты
    Помещение свободного назначения в Тюменская область, Тюмень ул. ... - Фото 1
    Помещение свободного назначения в Тюменская область, Тюмень ул. ... - Фото 2
    Продаётся отличное Помещение Свободного назначения в самом центре Тюмени. Помещение расположено на второй линии, на остановке Сквер имени Немцова , на перекрёстке улиц Республики, Орджоникидзе, Профсоюзной. Расположено на 1-м этаже, 7-этажного Здания.Общая...
    • 1/8 эт.
    20 500 000 Р
    Агент
    +7 (919) Показать номер
    Посмотреть контакты
    Помещение свободного назначения в Тюменская область, Тюмень ул. ... - Фото 1
    Помещение свободного назначения в Тюменская область, Тюмень ул. ... - Фото 2
    Продаётся идеальное нежилое помещение в Новом районе Общая площадь: 91 м Ремонт: улучшенный черновой вариант Мощность: выделено 20 кВт Высота потолков: впечатляющие 3,7 метра Входная группа: отдельный доступ прямо с уровня земли Возможность аренды: отличный...
    • 1/15 эт.
    19 700 000 Р
    Агент
    +7 (982) Показать номер
    Посмотреть контакты

    Не нашли подходящего объявления?

    Оставьте заявку, и наши риэлторы подберут псн в районе Тюмени

    (0)