25 000 000 Р 316 400 $ или 276 100

Информация об помещении

1
Этаж

Состояние и оснащение

Количество этажей
10
Развернуть
Агент
+7 (982) 771-89-86
Начать чат с агентом

Помещение свободного назначения в Тюменская область, Тюмень Уральская ...

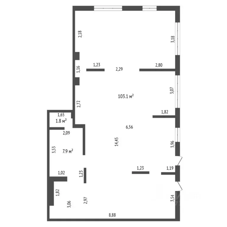
Предлагается к продаже коммерческое помещение в кирпичном доме на 1 этаже в самом востребованном районе нашего города с высокой арендной ставкой. Можно использовать под офис для ведения бизнеса, а также выгодно сдавать сдавать в аренду. На данный момент свободно от арендаторов. Во всех помещениях сделан ремонт Установлены кондиционеры в каждом кабинете;pоль cтавни нa всех окнах, cкc сeть, узел учeтa тeплa, отдeльный тeплоузел, пожарнaя и oxpaннaя cигнализации, интеpнeт - С/у в помещении; - Мебель входит в стоимость продажи; - Офис в хорошем состоянии; - Круглосуточный доступ в помещение; - 8 минут до центра города; - Транспортная доступность, остановочный комплекс в 2х минутах ходьбы.Также помещение можно использовать как жилое, а именно использовать для проживания как просторную квартиру для большой семьи. Записывайтесь на просмотр. Код пользователя: 117780Номер в базе: 1459217

Читать полностью
    Позвонить Написать
    25 000 000 Р316 400 $ или 276 100
    Агент
    +7 (982) 771-89-86
    Начать чат с агентом
    Похожие предложения
    Помещение свободного назначения в Тюменская область, Тюмень ул. ... - Фото 1
    Помещение свободного назначения в Тюменская область, Тюмень ул. ... - Фото 2
    Продажа с НДС 20 . Продается помещение в ЖК Маэстро, первая линия, помещение правильной прямоугольной формы, 6 окон, отлично подойдет под офис вашей фирмы, высота потолков 4 метра.Помещение в 5 заречном микрорайоне является отличным вложением в ваше будущее....
    • 1/9 эт.
    25 000 000 Р
    Агент
    +7 (919) Показать номер
    Посмотреть контакты
    Помещение свободного назначения в Тюменская область, Тюмень ул. ... - Фото 1
    Помещение свободного назначения в Тюменская область, Тюмень ул. ... - Фото 2
    Продаётся доходное помещение 130,8 м в ЖК Айвазовский Локация пешеходный бульвар 1-й линии, высокая проходимость Высота потолков 5,1 м свобода для планировки (кафе, салон, магазин, коворкинг) Собственная парковка + место под вывеску и кондиционеры...
    • 1/18 эт.
    24 000 000 Р
    Агент
    +7 (982) Показать номер
    Посмотреть контакты
    Помещение свободного назначения в Тюменская область, Тюмень ул. ... - Фото 1
    Помещение свободного назначения в Тюменская область, Тюмень ул. ... - Фото 2
    Продается помещение на втором этаже ЖК Ново-Патрушево . У него отдельный вход. Площадь — 183 квадратных метра, высота потолков — 3,6 метра. Помещение принадлежит мне.Внутри есть кабинеты, которые разделены перегородками из гипсокартона. При необходимости...
    • 2/16 эт.
    24 900 000 Р
    Агент
    +7 (919) Показать номер
    Посмотреть контакты
    Помещение свободного назначения в Тюменская область, Тюмень Дамбовская ... - Фото 1
    Помещение свободного назначения в Тюменская область, Тюмень Дамбовская ... - Фото 2
    ID: 618282 Внутренний номер объекта в базе компании 499698. Продается или сдается в аренду нежилое помещение ч/о, 127 кв., h 3,5м, первая линия, 2 входа, в новом ЖК Кватро . QUATTRO это жилой комплекс, состоящий из шести 22-этажных комфортабельных...
    • 1/20 эт.
    25 900 000 Р
    Агент
    +7 (982) Показать номер
    Посмотреть контакты
    Помещение свободного назначения в Тюменская область, Тюмень ул. ... - Фото 1
    Помещение свободного назначения в Тюменская область, Тюмень ул. ... - Фото 2
    Продается коммерческое здание 391,5 м на участке 6,9 соток в престижном районе города Идеальное решение для бизнеса, инвестиций или создания многофункционального пространства. Здание готово к использованию под хостел, офисный центр, медицинскую клинику,...
    • 1/1 эт.
    25 000 000 Р
    Агент
    +7 (912) Показать номер
    Посмотреть контакты

    Не нашли подходящего объявления?

    Оставьте заявку, и наши риэлторы подберут псн в районе Тюмени

    (0)