Реализация объекта недвижимости приостановлена

Информация об помещении

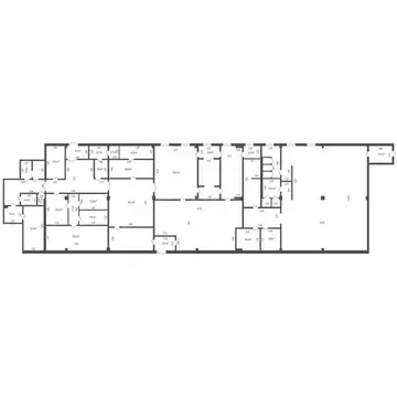
цоколь
Этаж

Состояние и оснащение

Количество этажей
3
Развернуть

Помещение свободного назначения в Тюменская область, Тюмень Фабричная ...

Коммерческое предложение по продаже уникального помещения для ресторанного бизнесаУважаемые господа Мы рады предложить вам уникальную возможность приобрести коммерческое помещение с целевым использованием под ресторанный бизнес площадью 831,1 кв. метров, расположенное в цокольном этаже. Это предложение идеально подходит для тех, кто хочет начать или расширить свой бизнес в сфере общественного питания.Описание помещения:Помещение разделено на две части:1. Ресторанная зона: • Первый зал: до 40 посадочных мест, оснащен диванами, столами и стульями. В наличии барная стойка, кондитерская витрина, профессиональная звуковая система, два широкоформатных телевизора и готовые интерьерные решения. Кондиционирование и вентиляция обеспечивают комфортную атмосферу для гостей. • Второй зал: до 100 посадочных мест с танцполом и сценой. Зал оборудован огромным жидкокристаллическим экраном, антикварным роялем, профессиональным звуком и готовыми интерьерными решениями. Также предусмотрены кондиционирование и вентиляция. • Дополнительно: гардероб, склад столовой продукции и два оборудованных офисных кабинета, а также мужские и женские санитарные узлы.2. Производственная зона: • Полностью укомплектованные цеха: кондитерский, пекарский, яйцебитня, шоколадный, разделочные (мясной и рыбный), горячий и холодный цехи. Все помещения оснащены современным инвентарем и оборудованием. • Производство включает склады: сухие склады и холодильные камеры с различными температурными режимами. • Дополнительно: моечная для кухонной и столовой посуды, гардероб и санитарный узел для персонала. Вентиляционная система и пожарно-охранная сигнализация обеспечивают безопасность и комфорт.Уникальные торговые предложения (УТП):1. Готовый бизнес под ключ: Помещение полностью подготовлено для немедленного запуска ресторанного бизнеса с уже установленным оборудованием и мебелью.2. Разнообразие функциональных зон: Наличие двух залов позволяет организовать различные мероприятия — от спокойных ужинов до шумных вечеринок и концертов.3. Современное оборудование: Все производственные помещения укомплектованы новейшим оборудованием, что минимизирует затраты на модернизацию.4. Гибкие условия приобретения: Возможность покупки с рассрочкой платежа на срок от одного года или долгосрочная аренда делают это предложение доступным для разных категорий покупателей.5. Привлекательное местоположение: Помещение расположено в удобном месте с высоким пешеходным трафиком, что гарантирует постоянный поток клиентов.6. Перспективы роста: Бизнес имеет потенциал для расширения благодаря наличию дополнительных зон и возможности организации новых услуг (например, производства полуфабрикатов, готовой продукции, кондитерской, кейтеринга или доставки).Приобретая данное помещение, вы получаете не просто объект недвижимости, а полноценный бизнес с готовой инфраструктурой и возможностью быстрого выхода на рынок. Если вас заинтересовало данное предложение или есть вопросы,

Читать полностью

    Реализация объекта недвижимости приостановлена

    Не нашли подходящего объявления?

    Оставьте заявку, и наши риэлторы подберут псн в районе Тюмени

    (0)