13 230 000 Р 169 100 $ или 143 700

Информация об помещении

1
Этаж

Состояние и оснащение

Количество этажей
8
Развернуть
Агент
+7 (912) 382-47-56
Начать чат с агентом

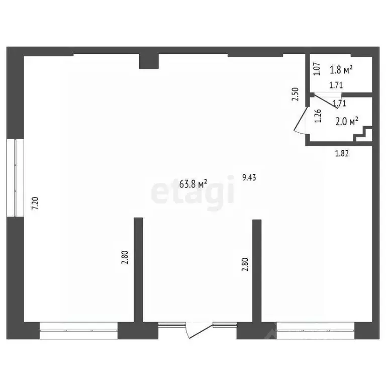
Помещение свободного назначения (63.83 м)

Помещение свободного назначения на 1 этаже, общая площадь 63.83 кв.м., без отделки. Стоимость помещения 13,230,, цена за кв.м 207, СРОК СДАЧИ - 2 КВАРТАЛ 2025 Продается коммерческое помещение в Квартале «Октябрьский на Туре 4400Перспективное количество жителей жилого района 10000Количество жителей в шаговой доступности 6,5 ГАПлощадь застройки 154 000 мПлощадь жилья Проект расположен на берегу реки, в одном из самых живописных и экологичных районов Тюмени. По мастер-плану здесь будет восемь домов с зелеными тихими дворами.Смысловая ось квартала — широкая главная улица с высаженными вдоль неё высокими деревьями. Они создают тень и работают как шумо- и пылезащитные экраны. Это место сосредоточения основных пешеходных и транспортных потоков, на сторону которых мы ориентировали большинство коммерческих помещений. Отсюда жители могут свернуть на тихие соседские улицы, выйти к парку на дамбе и попасть на внутриквартальную площадь — ещё одну точку притяжения. Технические параметры:Высота потолков от 3 метровОтдельный вход в каждое помещениеПредусмотрено место для информационно-рекламной вывескиВитражное остеклениеИнженерные коммуникации: водоотведение, канализация, вентиляция, электричество. (AQID

Читать полностью
    Позвонить Написать
    13 230 000 Р169 100 $ или 143 700
    Агент
    +7 (912) 382-47-56
    Начать чат с агентом
    Похожие предложения в Тюмени
    Помещение свободного назначения в Тюменская область, Тюмень ул. ... - Фото 1
    Помещение свободного назначения в Тюменская область, Тюмень ул. ... - Фото 2
    Уважаемые покупатели Предлогаю вашему вниманию помещение площаью 67,5 кв.м. в современно ЖК Мотивы, по проекту запланирована огромная застройка до 2030 года, но застройщик скорее всего реализует раньше, так как сдает очереди с опережением. Уже в данную...
    • 1/14 эт.
    12 900 000 Р
    Агент
    +7 (912) Показать номер
    Посмотреть контакты
    Помещение свободного назначения в Тюменская область, Тюмень Тарманы ... - Фото 1
    Помещение свободного назначения в Тюменская область, Тюмень Тарманы ... - Фото 2
    Представляю Вашему вниманию продажу нежилого помещения свободного назначения, общей площадью 84,4 кв.м., состоящее из двух частей: 41,2 кв.м.+ 35,5 кв.м.).В помещении выполнен косметический ремонт, также имеется два утепленных балкона, кондиционеры. Отдельный...
    • 1/5 эт.
    12 000 000 Р
    Агент
    +7 (982) Показать номер
    Посмотреть контакты
    Помещение свободного назначения в Тюменская область, Тюмень ул. ... - Фото 1
    Помещение свободного назначения в Тюменская область, Тюмень ул. ... - Фото 2
    Продается коммерческое помещение в новом кирпичном доме на 1 этаже жилого дома. Вход с двух сторон. Есть парковка и место для удобной разгрузки товара. В помещении сделан косметический ремонт. Общая площадь помещения 85,4 кв.м.. Помещение состоит из двух...
    • 1/14 эт.
    13 550 000 Р
    Агент
    +7 (919) Показать номер
    Посмотреть контакты
    Помещение свободного назначения в Тюменская область, Тюмень ул. ... - Фото 1
    Помещение свободного назначения в Тюменская область, Тюмень ул. ... - Фото 2
    БЕЗ КОМИССИИ для покупателя Продается помещение свободного назначения, в одном из престижнейших жилых комплексов г.Тюмени Европейском от топового застройщика Брусники.Помещение находится на 1 линии на 2 этаже с высоким пешеходным и автомобильным...
    • 2/17 эт.
    12 850 000 Р
    Агент
    +7 (919) Показать номер
    Посмотреть контакты
    Помещение свободного назначения (76.22 м) - Фото 1
    Помещение свободного назначения (76.22 м) - Фото 2
    Помещение свободного назначения на 1 этаже, общая площадь 76.22 кв.м., без отделки. Стоимость помещения 13,770,, цена за кв.м 180, В помещении высокие потолки 3,6 м. Такой формат позволяет обеспечивать жителей необходимыми товарами и услугами формата...
    • 1/14 эт.
    13 770 000 Р
    Агент
    +7 (966) Показать номер
    Посмотреть контакты

    Не нашли подходящего объявления?

    Оставьте заявку, и наши риэлторы подберут псн в районе Тюмени

    (0)