21 000 000 Р 265 300 $ или 228 700

Информация об помещении

1
Этаж

Состояние и оснащение

Количество этажей
10
Развернуть
Агент
+7 (982) 932-16-30
Начать чат с агентом

Помещение свободного назначения в Тюменская область, Тюмень Широтная ...

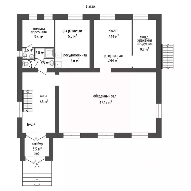
Отличное предложение для инвесторов Продается коммерческое помещение площадью 171,1 м на первом этаже. Это пространство с действующим арендатором (частный детский сад) предоставляет уникальную возможность для стабильного дохода и дальнейшего развития бизнеса.Основные характеристики:- Площадь: 171,1 м;- Этаж: 1-й;- 2 отдельных входа: один — с ул. Широтная, второй — во двор, где находится детская площадка;- Заселенный район с хорошей транспортной доступностью;- Активно развивающийся микрорайон с растущей численностью жителей;- Действующий арендатор (частный детский сад) с долгосрочной арендой.Преимущества помещения:- Два входа — удобно для разных типов бизнеса. Один из них выходит на улицу Широтную, обеспечивая высокий трафик и видимость, второй — в тихий двор, идеально подходит для детских учреждений, медицинских клиник или образовательных центров.- Заселенный район — помещение расположено в районе с развитой инфраструктурой, рядом находятся жилые комплексы, магазины, образовательные учреждения и детские площадки, что делает его востребованным для различных видов бизнеса.- Действующий арендатор — помещение уже приносит стабильный доход, арендаторы (частный детский сад) показывают стабильные результаты, что минимизирует ваши риски.- Гибкость для адаптации — свободная планировка и два входа позволяют легко адаптировать помещение под другие виды бизнеса, такие как офисы, медицинские центры, салоны красоты, магазины или другие образовательные учреждения.Для каких видов бизнеса подойдет помещение:- Детские учреждения — детские сады, центры раннего развития, кружки и секции- Медицинские учреждения — стоматологии, клиники, фитнес и оздоровительные центры- Образовательные центры — языковые школы, репетиторские кабинеты, курсы и тренинги- Розничная торговля — магазины товаров для детей, косметики, одежды, аксессуаров и т.д.- Салоны красоты и spa-услуги — с возможностью выделения отдельных кабинетов для персонала- Офисные пространства — офисы для малого и среднего бизнеса с возможностью оперативной настройки и гибкости.Уникальное предложение на рынке Инвестируйте в коммерческую недвижимость с арендатором и обеспечьте себе стабильный доход на долгосрочной основе. Высокий потенциал для перепрофилирования под другой вид бизнеса или расширения текущей деятельности. Номер предложения: 51725.

Читать полностью
    Позвонить Написать
    21 000 000 Р265 300 $ или 228 700
    Агент
    +7 (982) 932-16-30
    Начать чат с агентом
    Похожие предложения
    Помещение свободного назначения в Тюменская область, Тюмень ул. ... - Фото 1
    Помещение свободного назначения в Тюменская область, Тюмень ул. ... - Фото 2
    БЕЗ КОМИССИИ ДЛЯ ПОКУПАТЕЛЯ В продаже коммерческое помещение площадью 136 кв.м. Расположено на 1 этаже жилого дома. Есть вытяжка как для общепита. Помещение можно снять в аренду. Арендная плата составит 1200/ за 1 кв.м. Соседний арендатор - магазин Ярче....
    • 1/9 эт.
    20 900 000 Р
    Агент
    +7 (982) Показать номер
    Посмотреть контакты
    Помещение свободного назначения в Тюменская область, Тюмень Р-404, ... - Фото 1
    Помещение свободного назначения в Тюменская область, Тюмень Р-404, ... - Фото 2
    ЭКСКЛЮЗИВНОЕ КАФЕ-ГОСТИНИЦА.НА ПЕРВОЙ линии. Коммерческая земля- Общественное питание.Граничит с городом.Двухэтажное здание, с мансардой, подвалом, парковкой.Можно использовать под Офис, Ночной Клуб, складские помещения, пекарня, магазин, паркинг.На Тобольском...
    • 2/2 эт.
    20 950 000 Р
    Агент
    +7 (919) Показать номер
    Посмотреть контакты
    Помещение свободного назначения в Тюменская область, Тюмень ул. ... - Фото 1
    Помещение свободного назначения в Тюменская область, Тюмень ул. ... - Фото 2
    БЕЗ КОМИССИИ ДЛЯ ПОКУПАТЕЛЯ Продам коммерческое помещение общей площадью 100,04 м2. Расположено на первом этаже жилого дома в ЖК Новатор, срок сдачи жилых домов - 4 квартал 2025 года.В помещении:- отдельная безбарьерная входная группа- потолки от 3 м-...
    • 1/14 эт.
    21 508 600 Р
    Агент
    +7 (919) Показать номер
    Посмотреть контакты
    Помещение свободного назначения в Тюменская область, Тюмень ул. ... - Фото 1
    Помещение свободного назначения в Тюменская область, Тюмень ул. ... - Фото 2
    Продам нежилое помещение 172.9 кв.м в самом центре Тюмени с потенциально широким спектром назначения. Помещение располагается на 1 этаже кирпичного дома класса комфорт на улице Шиллера Отличное месторасположение делают этот объект по-настоящему привлекательным...
    • 1/9 эт.
    21 000 000 Р
    Агент
    +7 (982) Показать номер
    Посмотреть контакты
    Помещение свободного назначения в Тюменская область, Тюмень ул. 50 лет ... - Фото 1
    Помещение свободного назначения в Тюменская область, Тюмень ул. 50 лет ... - Фото 2
    БЕЗ КОМИССИИ ДЛЯ ПОКУПАТЕЛЯ Продам отличное помещение в самом центре города:- площадь 137.9 кв.м.;- 1 этаж в жилом доме;- 1 линия;- централизованная система водоснабжения, отопления;- электрическая мощность 25 кВт;- свой санузел;- отличный пешеходный...
    • 1/10 эт.
    22 000 000 Р
    Агент
    +7 (919) Показать номер
    Посмотреть контакты

    Не нашли подходящего объявления?

    Оставьте заявку, и наши риэлторы подберут псн в районе Тюмени

    (0)