22 780 000 Р 292 700 $ или 249 800

Информация об помещении

1
Этаж

Состояние и оснащение

Количество этажей
16
Развернуть
Агент
+7 (912) 382-47-56
Начать чат с агентом

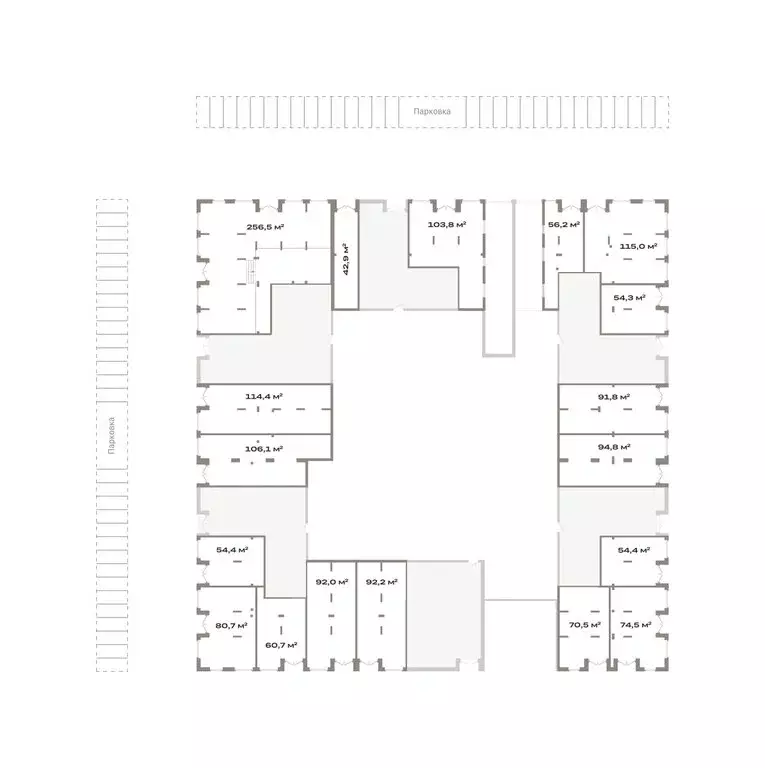
Помещение свободного назначения (91.97 м)

Помещение свободного назначения на 1 этаже, общая площадь 91.97 кв.м., без отделки. Стоимость помещения 22,780,, цена за кв.м 247, 1 КВАРТАЛ 2026 Продается коммерческое помещение в жилом районе «Зарека 8 000 человекПерспективное количество жителей жилого района 35 000 человекКоличество жителей в шаговой доступности 6,31 ГаПлощадь застройки 313 600 мПлощадь жилья Проект расположен в заречной части Тюмени, на левом берегу Туры, рядом с двумя другими нашими объектами — «Европейским кварталом и «Домом у озера . С центром Тюмени площадку связывает мост Челюскинцев. Согласно утверждённому проекту планировки территории здесь появятся несколько новых улиц и развязка на пересечении 2-ой Луговой и Щербакова, которые позволят увеличить транспортную и пешеходную доступность района и снизить загруженность дорожной сети. Ключевая задача проекта — превратить площадку в самодостаточный локальный городской центр; сформировать современную инфраструктуру, объединив жилую, торговую, рекреационную и образовательную функции. Технические параметры:Высота потолков от 3 метровОтдельный вход в каждое помещениеПредусмотрено место для информационно-рекламной вывескиВитражное остеклениеИнженерные коммуникации: водоотведение, канализация, вентиляция, электричество. (AQID

Читать полностью
    Позвонить Написать
    22 780 000 Р292 700 $ или 249 800
    Агент
    +7 (912) 382-47-56
    Начать чат с агентом
    Похожие предложения в Тюмени
    Помещение свободного назначения (92.21 м) - Фото 1
    Помещение свободного назначения (92.21 м) - Фото 2
    Помещение свободного назначения на 1 этаже, общая площадь 92.21 кв.м., без отделки. Стоимость помещения 22,830,, цена за кв.м 247, 1 КВАРТАЛ 2026 Продается коммерческое помещение в жилом районе «Зарека 8 000 человекПерспективное количество жителей...
    • 1/16 эт.
    22 830 000 Р
    Агент
    +7 (912) Показать номер
    Посмотреть контакты
    Помещение свободного назначения (95.1 м) - Фото 1
    Помещение свободного назначения (95.1 м) - Фото 2
    Помещение свободного назначения на 1 этаже, общая площадь 95.1 кв.м., без отделки. Стоимость помещения 23,440,, цена за кв.м 246, 1 КВАРТАЛ 2026 Продается коммерческое помещение в жилом районе «Зарека 8 000 человекПерспективное количество жителей...
    • 1/16 эт.
    23 440 000 Р
    Агент
    +7 (912) Показать номер
    Посмотреть контакты
    Помещение свободного назначения (95.1 м) - Фото 1
    Помещение свободного назначения (95.1 м) - Фото 2
    Помещение свободного назначения на 1 этаже, общая площадь 95.1 кв.м., без отделки. Стоимость помещения 23,440,, цена за кв.м 246, 1 КВАРТАЛ 2026 Продается коммерческое помещение в жилом районе «Зарека 8 000 человекПерспективное количество жителей...
    • 1/16 эт.
    23 440 000 Р
    Агент
    +7 (912) Показать номер
    Посмотреть контакты
    Помещение свободного назначения (91.82 м) - Фото 1
    Помещение свободного назначения (91.82 м) - Фото 2
    Помещение свободного назначения на 1 этаже, общая площадь 91.82 кв.м., без отделки. Стоимость помещения 22,740,, цена за кв.м 247, 1 КВАРТАЛ 2026 Продается коммерческое помещение в жилом районе «Зарека 8 000 человекПерспективное количество жителей...
    • 1/16 эт.
    22 740 000 Р
    Агент
    +7 (912) Показать номер
    Посмотреть контакты
    Помещение свободного назначения (91.97 м) - Фото 1
    Помещение свободного назначения (91.97 м) - Фото 2
    Помещение свободного назначения на 1 этаже, общая площадь 91.97 кв.м., без отделки. Стоимость помещения 22,780,, цена за кв.м 247, 1 КВАРТАЛ 2026 Продается коммерческое помещение в жилом районе «Зарека 8 000 человекПерспективное количество жителей...
    • 1/16 эт.
    22 780 000 Р
    Агент
    +7 (912) Показать номер
    Посмотреть контакты

    Не нашли подходящего объявления?

    Оставьте заявку, и наши риэлторы подберут псн в районе Тюмени

    (0)