27 600 000 Р 342 300 $ или 295 400

Информация об помещении

3
Этаж

Состояние и оснащение

Количество этажей
9
Развернуть
Агент
+7 (982) 982-72-33
Начать чат с агентом

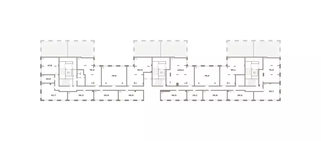
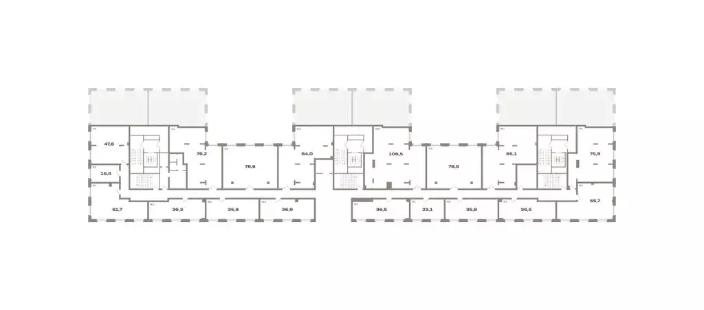
Помещение свободного назначения в Тюменская область, Тюмень Причальная ...

Помещение свободного назначения на 3 этаже, общая площадь 106.5 кв.м., без отделки. Стоимость помещения 27,600,, цена за кв.м 259, ДОМ СДАН Продается коммерческое помещение в Жилом районе Речной порт 8 300 человекПерспективное количество жителей жилого квартала 40 000 человекКоличество жителей в шаговой доступности 3,8 ГаПлощадь застройки 67 000 м2Площадь жилья Первые этажи домов займут магазины, салоны красоты, пекарни, кафе и другие полезные сервисы для жителей. В каждомпомещении спроектирован отдельный вход и высокие потолки. Рядом предусмотрены гостевые парковки, зоны погрузки и разгрузки. Для ритейла применяется витражное остекление. Оно делает бизнес более привлекательным, а проникающий через окна тёплый свет добавляет улицам уюта. Особенно в холодное время года. Точки притяжения района Набережная: Главным общественным пространством района станет набережная. Территория вдоль Туры будет разделена на три зоны — городскую, индустриальную и природную. Отдельный проект — пространство под Профсоюзным мостом. У девелопера были планы превратить его в креативный кластер. В ходе воркшопов с активными горожанами удалось даже предварительно сформировать структуру этого кластера, придав ему спортивный характер. Исторический квартал: Самый сильный артефакт, сохранившийся в контуре нового района, — здание электростанции. Рядом с электростанцией стоят дом Плотниковых и безымянный дом по адресу ул. Госпаровская, 27. Тоже памятники архитектуры. В итоге в Речном порту будет сформировано место, которое соединит историю с актуальными функциями. Здесь появятся офисы, коворкинг, клиентский центр управляющей компании, детские кружки, поликлиника, спортивные секции, бутик-отель, кафе, рестораны, магазины, салон красоты, зал для мероприятий, творческие студии. Арт-объекты: В Речном порту мы оставим сразу несколько артефактов. Пожалуй, самыми заметными из них станут Ганц и Альбрехт — два портальных крана на рельсовом ходу. Другой достопримечательностью Речного порта станут полуторатонный якорь и пароходные винты. Технические параметры:Цементно-песчаная стяжка пола и выровненные оштукатуренные стеныВысота потолков от 3 метровОтдельный вход в каждое помещениеПредусмотрено место для информационно-рекламной вывескиВитражное остеклениеИнженерные коммуникации: водоотведение, канализация, вентиляция, электричество Инвестировать в коммерческие помещения Брусники это обдуманный шаг для открытия собственного дела или создания арендного бизнеса с высокой доходностью. Мы проектируем наши объекты таким образом, чтобы они становились центрами притяжения для жителей района и его гостей. Благодаря удачному расположению и тщательно продуманной инфраструктуре, наши проекты привлекают большой пешеходный трафик. Это можно увидеть на примере наших реализованных проектов, таких как Европейский квартал , Европейский , Видный и Новин , где бизнесы успешно функционируют и привлекают клиентов.

Читать полностью
    Позвонить Написать
    27 600 000 Р342 300 $ или 295 400
    Агент
    +7 (982) 982-72-33
    Начать чат с агентом
    Похожие предложения
    Помещение свободного назначения (106.5 м) - Фото 1
    Помещение свободного назначения (106.5 м) - Фото 2
    Помещение свободного назначения на 3 этаже, общая площадь 106.5 кв.м., без отделки. Стоимость помещения 27,600,, цена за кв.м 259, ДОМ СДАН Продается коммерческое помещение в Жилом районе «Речной порт 8 300 человекПерспективное количество жителей...
    • 3/9 эт.
    27 600 000 Р
    Агент
    +7 (912) Показать номер
    Посмотреть контакты
    Помещение свободного назначения (106.5 м) - Фото 1
    Помещение свободного назначения (106.5 м) - Фото 2
    Помещение свободного назначения на 3 этаже, общая площадь 106.5 кв.м., без отделки. Стоимость помещения 27,600,, цена за кв.м 259, ДОМ СДАН Продается коммерческое помещение в Жилом районе «Речной порт 8 300 человекПерспективное количество жителей...
    • 3/9 эт.
    27 600 000 Р
    Агент
    +7 (912) Показать номер
    Посмотреть контакты
    Помещение свободного назначения (106.5 м) - Фото 1
    Помещение свободного назначения (106.5 м) - Фото 2
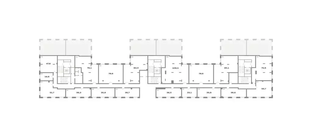
    Помещение свободного назначения на 2 этаже, общая площадь 106.5 кв.м., без отделки. Стоимость помещения 27,600,, цена за кв.м 259, ДОМ СДАН Продается коммерческое помещение в Жилом районе «Речной порт 8 300 человекПерспективное количество жителей...
    • 2/9 эт.
    27 600 000 Р
    Агент
    +7 (912) Показать номер
    Посмотреть контакты
    Помещение свободного назначения в Тюменская область, Тюмень ул. Щорса, ... - Фото 1
    Помещение свободного назначения в Тюменская область, Тюмень ул. Щорса, ... - Фото 2
    Продажа готового бизнеса - косметологическая клиника. Расматриваем продажу просто помещения.
    • 1/9 эт.
    28 000 000 Р
    Агент
    +7 (982) Показать номер
    Посмотреть контакты
    Помещение свободного назначения в Тюменская область, Тюмень Зарека ... - Фото 1
    Помещение свободного назначения в Тюменская область, Тюмень Зарека ... - Фото 2
    Помещение свободного назначения на 1 этаже, общая площадь 140.21 кв.м., без отделки. Стоимость помещения 27,790,, цена за кв.м 198, Дом: 2-12 квартал 2029 Продается коммерческое помещение в жилом районе Зарека 8 000 человекПерспективное количество...
    • 1/8 эт.
    27 790 000 Р
    Агент
    +7 (982) Показать номер
    Посмотреть контакты

    Не нашли подходящего объявления?

    Оставьте заявку, и наши риэлторы подберут псн в районе Тюмени

    (0)