Россия, Тюменская область, Тюмень, улица Андрея Приказнова, 1
10 800 000 Р 141 000 $ или 118 600

Информация об помещении

1
Этаж

Состояние и оснащение

Количество этажей
14
Развернуть
Агент
+7 (966) 765-96-58
Начать чат с агентом

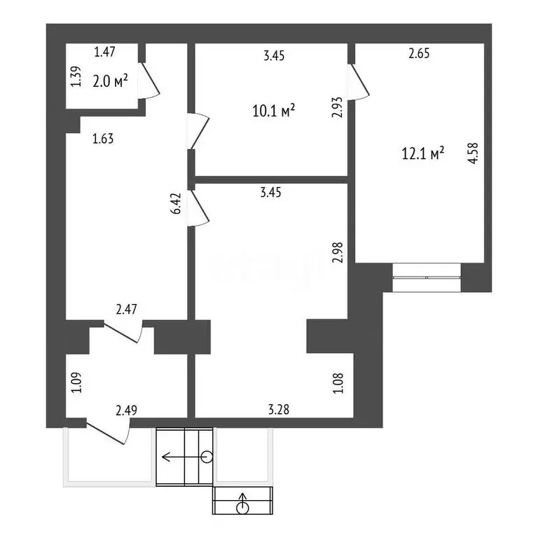
Помещение свободного назначения (59.07 м)

Помещение свободного назначения на 1 этаже, общая площадь 59.07 кв.м., без отделки. Стоимость помещения 10,800,, цена за кв.м 182, Такой формат позволяет обеспечивать жителей необходимыми товарами и услугами формата «у дома : здесь может быть расположен пункт выдачи заказов, кафе, магазин. Место c интенсивным пешеходным потоком. Выигрышное местоположение. Первый этаж здания с обеспеченным активным пешеходным трафиком. Помещение идеально подходит под разнообразные сервисы формата «у дома , включая пункты выдачи заказов, кафе, магазины и другие виды бизнеса. Огромный рынок потребителей. ЖК «Мотивы состоит из 7 домов на 2126 квартир с общей численностью жителей около 5500 человек. Планируется окружение другими жилыми комплексами и торговыми кварталами. Выгодное вложение. Высокая плотность населения и развитая инфраструктура гарантируют быструю окупаемость денежных средств. Растущая инфраструктура. Строящаяся большая транспортная развязка, планируемое открытие двух детских садов и школы в шаговой доступности – всё необходимое для успешного бизнеса. Гибкость использования. Помещение подходит для ресторанов, кафе, фитнес-студий, салонов красоты, магазинов и ряда других бизнесов. Технические характеристики: Высота потолков: 3,6-4 метра. Электрическая мощность: от 0,2 КВт на м с возможностью увеличения. Индивидуальная вытяжка в каждом помещении. Системы безопасности: гидранты и пожарная сигнализация. Индивидуальные счетчики: на воду, тепло и электричество. Отдельный вход: на улицу или прогулочный бульвар. Панорамное остекление: современный вид и отличная видимость. Размещение вывески: возможность установки на фасаде здания. Комплексная инфраструктура и трафик: плотный поток покупателей, места длякондиционеров, мокрая точка и коммерческие помещения на первом этаже. Инвестируйте в коммерческое помещение в ЖК Мотивы — это обдуманный шаг для открытия собственного дела или создания арендного бизнеса с высокой доходностью. Не упустите возможность вложить в будущее (AQID

Читать полностью
    Позвонить Написать
    10 800 000 Р141 000 $ или 118 600
    Агент
    +7 (966) 765-96-58
    Начать чат с агентом
    Похожие предложения в Тюмени
    Помещение свободного назначения в Тюменская область, Тюмень ... - Фото 1
    Помещение свободного назначения в Тюменская область, Тюмень ... - Фото 2
    Ищете идеальное место для вашего бизнеса? Тогда это объявление для вас Продаётся коммерческое помещение площадью 55,4 кв. м в ЖК Ситион . Высота потолков — 3,5 метра, мощность электроэнергии — 15 кВт. Помещение оснащено независимой вытяжной вентиляцией...
    • 1/24 эт.
    12 000 000 Р
    Агент
    +7 (912) Показать номер
    Посмотреть контакты
    Помещение свободного назначения в Тюменская область, Тюмень ул. Андрея ... - Фото 1
    Помещение свободного назначения в Тюменская область, Тюмень ул. Андрея ... - Фото 2
    Помещение свободного назначения на 1 этаже, общая площадь 65.22 кв.м., без отделки. Стоимость помещения 11,970,, цена за кв.м 183, Такой формат позволяет обеспечивать жителей необходимыми товарами и услугами формата у дома : здесь может быть расположен...
    • 1/14 эт.
    11 970 000 Р
    Агент
    +7 (982) Показать номер
    Посмотреть контакты
    Помещение свободного назначения в Тюменская область, Тюмень ул. ... - Фото 1
    Помещение свободного назначения в Тюменская область, Тюмень ул. ... - Фото 2
    Предлагаем к покупке/аренде коммерческое помещение в центре города на первой линии ОБ ОБЪЕКТЕ: -Площадь 56.7м2-Первая линия -Отдельный вход -Парковка бесплатная у крыльца -мокрая точка -сделан ремонт -есть возможность сделать планировку под себя -сигнализация...
    • 1/9 эт.
    10 500 000 Р
    Агент
    +7 (919) Показать номер
    Посмотреть контакты
    Помещение свободного назначения (56.7 м) - Фото 1
    Помещение свободного назначения (56.7 м) - Фото 2
    Предлагаем к покупке/аренде коммерческое помещение в центре города на первой линии ОБ ОБЪЕКТЕ: -Площадь 56.7м2-Первая линия -Отдельный вход -Парковка бесплатная у крыльца -мокрая точка -сделан ремонт -есть возможность сделать планировку под себя -сигнализация...
    • 1/9 эт.
    10 500 000 Р
    Агент
    +7 (919) Показать номер
    Посмотреть контакты
    Помещение свободного назначения на 1 этаже, общая площадь 65.22 кв.м., без отделки. Стоимость помещения 11,970,, цена за кв.м 183, Такой формат позволяет обеспечивать жителей необходимыми товарами и услугами формата «у дома : здесь может быть расположен...
    • 1/14 эт.
    11 970 000 Р
    Агент
    +7 (966) Показать номер
    Посмотреть контакты

    Не нашли подходящего объявления?

    Оставьте заявку, и наши риэлторы подберут псн в районе Тюмени

    (0)