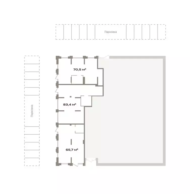
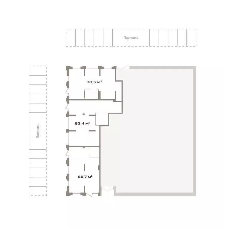
Помещение свободного назначения на 1 этаже, общая площадь 83.37 кв.м., без отделки. Стоимость помещения 15,720,, цена за кв.м 188, ДОМ СДАН Продается коммерческое помещение в Квартале «Октябрьский на Туре 4400Перспективное количество жителей жилого района 10000Количество жителей в шаговой доступности 6,5 ГАПлощадь застройки 154 000 мПлощадь жилья На первых этажах домов будут расположены магазины, салоны красоты, пекарни, кафе с отдельным входом, высокими потолками и витражным остеклением. Рядом с ними — гостевые парковки, зоны погрузки и разгрузки. Район, из которого не захочется уезжать На улицах с активным пешеходным трафиком появятся общественные пространства, скверы. Основные транзитные зоны предполагается благоустроить парклетами, навесами, летними кафе. Так мы наполним улицы возможностями для общения, сохранив их транзитную функцию. Территория района соседствует с дамбой, которую мы благоустроим, превратив в место для прогулок и пикников. Её контуру будет вторить линейный парк с функциональным зонированием. Вдоль всего маршрута будут сформированы точки притяжения: смотровые площадки, событийные площади, амфитеатры, зоны для спорта, йоги, пляжного волейбола, а также небольшие павильоны ритейла, где можно будет отдохнуть и перекусить во время прогулки. Технические параметры:Высота потолков от 3 метровОтдельный вход в каждое помещениеПредусмотрено место для информационно-рекламной вывескиВитражное остеклениеИнженерные коммуникации: водоотведение, канализация, вентиляция, электричество Инвестировать в коммерческие помещения Брусники это обдуманный шаг для открытия собственного дела или создания арендного бизнеса с высокой доходностью. Мы проектируем наши объекты таким образом, чтобы они становились центрами притяжения для жителей района и его гостей. Благодаря удачному расположению и тщательно продуманной инфраструктуре, наши проекты привлекают большой пешеходный трафик. Это можно увидеть на примере наших реализованных проектов, таких как «Европейский , «Видный и «Новин , где бизнесы успешно функционируют и привлекают клиентов. (AQID
Оставьте заявку, и наши риэлторы подберут псн в районе Тюмени