11 750 000 Р 147 400 $ или 127 500

Информация об помещении

1
Этаж

Состояние и оснащение

Количество этажей
10
Развернуть
Агент
+7 (966) 765-69-44
Начать чат с агентом

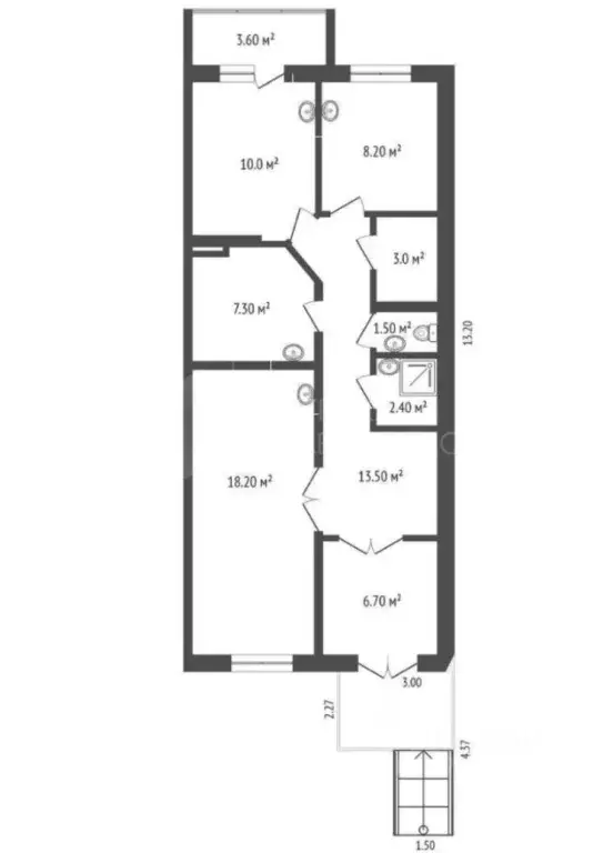
Помещение свободного назначения (67 м)

Продаётся коммерческое помещение на 1-м этаже 10этажного кирпичного дома, расположенное на пересечении улиц Пермякова и Дмитрия Менделеева — первая линия, высокий пешеходный и автомобильный трафик, удобная парковка и остановка рядом. Крыльцо выходит на ул. Дмитрия Менделеева. В непосредственной близости — ТЦ «Кристалл , «Дарина , «Амега , рынок «Михайловский .Основные характеристики- Адрес: г. Тюмень, ул. Пермякова, 82/1 - Площадь: 67 м, 1-й этаж (входы — два отдельных) - Этажность здания: 10 этажей (кирпич) - Высота потолка: 2,6 м - Ремонт: керамогранит на полу, окрашенные стены, подвесной потолок Armstrong - Инженерия и безопасность: пожарная и охранная сигнализации, рольставни, коммуникации для коммерческой эксплуатации - Текущее использование: сдается в аренду более 3 лет под барбершоп/парикмахерскую с оборудованием и профильным ремонтом - Арендный платёж: 75 000 /мес - Окупаемость: 13 лет 3 месяца (ориентировочно, при текущем доходе)Преимущества инвестиции- Готовый денежный поток с устойчивым и платящим арендатором — минимальные риски простоя. - Два отдельных входа и витринное расположение повышают ликвидность и удобство эксплуатации. - Премиальная отделка и грамотная инженерная разводка позволяют быстро переоборудовать под другой профиль при необходимости. - Близость торговых центров и рынка обеспечивает постоянный приток потенциальных клиентов и сотрудников. - Помещение в собственности, без обременений — готово к сделке с инвестором. Номер объекта: 4006141

Читать полностью
    Позвонить Написать
    11 750 000 Р147 400 $ или 127 500
    Агент
    +7 (966) 765-69-44
    Начать чат с агентом
    Похожие предложения
    Помещение свободного назначения в Тюменская область, Тюмень ул. ... - Фото 1
    Помещение свободного назначения в Тюменская область, Тюмень ул. ... - Фото 2
    Продаётся коммерческое помещение на 1-м этаже 10этажного кирпичного дома, расположенное на пересечении улиц Пермякова и Дмитрия Менделеева — первая линия, высокий пешеходный и автомобильный трафик, удобная парковка и остановка рядом. Крыльцо выходит на...
    • 1/10 эт.
    11 750 000 Р
    Агент
    +7 (982) Показать номер
    Посмотреть контакты
    Помещение свободного назначения в Тюменская область, Тюмень ул. ... - Фото 1
    Помещение свободного назначения в Тюменская область, Тюмень ул. ... - Фото 2
    Продается готовый бизнес (салон красоты) на первом этаже в новом десяти этажном доме с отдельной входной группой. Район Лесобаза , проходимое место, рядом множество многоквартирных домов, постоянный поток клиентов. С парковкой проблем нет. Салон красоты...
    • 1/10 эт.
    11 000 000 Р
    Агент
    +7 (912) Показать номер
    Посмотреть контакты
    Помещение свободного назначения в Тюменская область, Тюмень Мотивы ... - Фото 1
    Помещение свободного назначения в Тюменская область, Тюмень Мотивы ... - Фото 2
    Помещение свободного назначения на 1 этаже, общая площадь 33.33 кв.м., без отделки. Стоимость помещения 12,260,, цена за кв.м 367, Такой формат позволяет обеспечивать жителей необходимыми товарами и услугами формата у дома : здесь может быть расположен...
    • 1/10 эт.
    12 260 000 Р
    Агент
    +7 (982) Показать номер
    Посмотреть контакты
    Помещение свободного назначения в Тюменская область, Тюмень ул. Павла ... - Фото 1
    Помещение свободного назначения в Тюменская область, Тюмень ул. Павла ... - Фото 2
    Помещение свободного назначения на -1 этаже, общая площадь 84.24 кв.м., без отделки. Стоимость помещения 11,510,, цена за кв.м 136, Дом сдан Продается коммерческое помещение в жилом районе Зарека 8 000 человекПерспективное количество жителей жилого...
    • -1/8 эт.
    11 510 000 Р
    Агент
    +7 (982) Показать номер
    Посмотреть контакты
    Помещение свободного назначения в Тюменская область, Тюмень ул. Павла ... - Фото 1
    Помещение свободного назначения в Тюменская область, Тюмень ул. Павла ... - Фото 2
    Помещение свободного назначения на -1 этаже, общая площадь 83.1 кв.м., без отделки. Стоимость помещения 11,510,, цена за кв.м 138, Дом сдан Продается коммерческое помещение в жилом районе Зарека 8 000 человекПерспективное количество жителей жилого...
    • -1/8 эт.
    11 510 000 Р
    Агент
    +7 (982) Показать номер
    Посмотреть контакты

    Не нашли подходящего объявления?

    Оставьте заявку, и наши риэлторы подберут псн в районе Тюмени

    (0)