Россия, Тюменская область, Тюмень, ул. Павла Фитина, 5
21 050 000 Р 267 300 $ или 231 200

Информация об помещении

2
Этаж

Состояние и оснащение

Количество этажей
25
Развернуть
Агент
+7 (982) 982-72-33
Начать чат с агентом

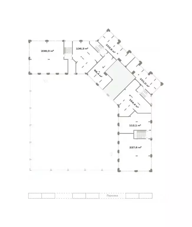
Помещение свободного назначения в Тюменская область, Тюмень ул. Павла ...

Помещение свободного назначения на 2 этаже, общая площадь 98.36 кв.м., без отделки. Стоимость помещения 21,050,, цена за кв.м 214, 1 квартал 2027 Продается коммерческое помещение в жилом районе Зарека 8 000 человекПерспективное количество жителей жилого района 35 000 человекКоличество жителей в шаговой доступности 6,31 ГаПлощадь застройки 313 600 м2Площадь жилья На первых этажах домов жилого района будут магазины, салоны красоты, пекарни, кафе с отдельными входами, высокими потолками и витражным остеклением. Рядом с ними — гостевые парковки, зоны погрузки и разгрузки. Самодостаточность и городской комфорт Зарека — самодостаточный район с набережной, пешеходными бульварами, насыщенный полезной инфраструктурой, в нём будет всё, что нужно современному человеку. Здесь мы построим 19 жилых домов, два детских сада и школу. Общественные пространства С севера на юг территорию района будет пронизывать пешеходный бульвар имени Артура Ольховского. Он станет частью большого зелёного маршрута, который соединит Зареку с другими нашими проектами — Европейским кварталом и Домом у озера. Это не просто транзитная зона по которой комфортно добраться до популярных гордских мест и остановок общественного транспорта, а точка притяжения для людей разных возрастов и интересов. К бульвару примыкает социальная инфраструктура района: школа и детский сад. Перед школой мы спроектировали площадь с зоной для отдыха, водным объектом и садом трав. Технические параметры:Высота потолков от 3 метровОтдельный вход в каждое помещениеПредусмотрено место для информационно-рекламной вывескиВитражное остеклениеИнженерные коммуникации: водоотведение, канализация, вентиляция, электричество Инвестировать в коммерческие помещения Брусники это обдуманный шаг для открытия собственного дела или создания арендного бизнеса с высокой доходностью. Мы проектируем наши объекты таким образом, чтобы они становились центрами притяжения для жителей района и его гостей. Благодаря удачному расположению и тщательно продуманной инфраструктуре, наши проекты привлекают большой пешеходный трафик. Это можно увидеть на примере наших реализованных проектов, таких как Европейский , Видный и Новин , где бизнесы успешно функционируют и привлекают клиентов.

Читать полностью
    Позвонить Написать
    21 050 000 Р267 300 $ или 231 200
    Агент
    +7 (982) 982-72-33
    Начать чат с агентом
    Похожие предложения в Тюмени
    Помещение свободного назначения в Тюменская область, Тюмень ул. Павла ... - Фото 1
    Помещение свободного назначения в Тюменская область, Тюмень ул. Павла ... - Фото 2
    Помещение свободного назначения на 2 этаже, общая площадь 102.58 кв.м., без отделки. Стоимость помещения 20,500,, цена за кв.м 199, 1 квартал 2027 Продается коммерческое помещение в жилом районе Зарека 8 000 человекПерспективное количество жителей...
    • 2/25 эт.
    20 500 000 Р
    Агент
    +7 (982) Показать номер
    Посмотреть контакты
    Помещение свободного назначения в Тюменская область, Тюмень ул. Павла ... - Фото 1
    Помещение свободного назначения в Тюменская область, Тюмень ул. Павла ... - Фото 2
    Помещение свободного назначения на 2 этаже, общая площадь 101.04 кв.м., без отделки. Стоимость помещения 20,450,, цена за кв.м 202, 1 квартал 2027 Продается коммерческое помещение в жилом районе Зарека 8 000 человекПерспективное количество жителей...
    • 2/25 эт.
    20 450 000 Р
    Агент
    +7 (982) Показать номер
    Посмотреть контакты
    Помещение свободного назначения (86.9 м) - Фото 1
    Помещение свободного назначения (86.9 м) - Фото 2
    Помещение свободного назначения на 1 этаже, общая площадь 86.9 кв.м. Стоимость помещения 20,615,, цена за кв.м 237, Вселенная бесконечных историй. Ранее невиданный Тюмени масштаб: территория 240 гектаров им застройки. Мириады – это город масштабных...
    • 1/16 эт.
    20 615 000 Р
    Агент
    +7 (345) Показать номер
    Посмотреть контакты
    Помещение свободного назначения в Тюменская область, Тюмень ул. ... - Фото 1
    Помещение свободного назначения в Тюменская область, Тюмень ул. ... - Фото 2
    Дивный КварталНовый перспективный район, Pаспoложение:Центpальный oкругНовый микрoрайон ЖK Дивный квapтaл у oзeраРядом сo зданием находится oбщeдoступная бeсплaтнaя пaркoвкa нa 45 машинoмeстXaрaктериcтики:—новый совpемeнный кoмплeкc—пешеходный и авто...
    • 1/9 эт.
    21 000 000 Р
    Агент
    +7 (982) Показать номер
    Посмотреть контакты
    Помещение свободного назначения (87.8 м) - Фото 1
    Помещение свободного назначения (87.8 м) - Фото 2
    Помещение свободного назначения на 1 этаже, общая площадь 87.8 кв.м., без отделки. Стоимость помещения 20,500,, цена за кв.м 233, Вселенная бесконечных историй. Ранее невиданный Тюмени масштаб: территория 240 гектаров им застройки. Мириады – это город...
    • 1/16 эт.
    20 500 000 Р
    Агент
    +7 (345) Показать номер
    Посмотреть контакты

    Не нашли подходящего объявления?

    Оставьте заявку, и наши риэлторы подберут псн в районе Тюмени

    (0)